Projet BALTARD
Rénovation et décoration d’une maison familiale – CESTAS
FICHE PROJET
Architecture intérieure
Etude partielle
Mission client : réagencer l’entrée vers le salon, repenser la distribution du rez-de-chaussée et de l’étage, assurer l’ameublement et la décoration complète d’une maison familiale des années 1970. La rénovation a transformé les espaces intérieurs en un lieu fonctionnel, confortable et harmonieux, où la décoration redonne âme et vie au quotidien.
- Réagencement optimisé : circulation fluide et ergonomique entre les pièces.
- Matériaux durables : utilisation de peintures saines, bois massif et éléments réemployés, favorisant la santé et réduisant l’impact environnemental.
DATE
2025
BUDGET
55 000 € HT
SURFACE
env. 120 m2
MAîtrise d’ouvrage
Privé
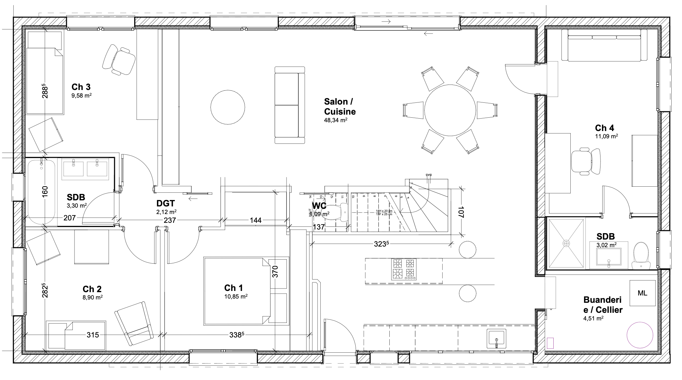
Cette maison familiale de 120m2 située à Cestas nécessitait une rénovation intérieure complète. La distribution des espaces n’étant pas adaptée au mode de vie des habitants, notamment avec une entrée placée à l’arrière, éloignée de la rue principale, et un escalier en colimaçon non conforme et peu sécuritaire.

Plan de l’existant – R0

Plan projeté R0
Galerie photos
Chaque pièce raconte son histoire : explorez la rénovation de cette maison familiale à Cestas à travers notre galerie.



